
電機振動給料機用途
電機振動給料機適用于礦山、冶金、化工,建材等行業各種散狀物料的輸送,也適用于水份高,含量大的粘性物料。
電機振動給料機特點
BZG普通電機驅動慣性振動給料機是吸取了GZG、GZY振動給料機等機型的優點而開發的。電機振動給料機是一種理想的高效低噪音給料機,采用低頻率大振幅振動,處理量大。
電機振動給料機工作原理
電機振動給料機的給料過程是利用特制的振動電機或兩臺電動機帶動激振器驅動給料槽沿傾斜方向作周期直線往復振動來實現,當給料槽振動的加速度垂直分量大于重力加速度時,槽中的料被拋起,并按照拋物線的軌跡向前跳躍運動,拋起和下落在瞬間完成,由于激振源的連續激振,給料槽連續振動,槽中的煤連續向前跳躍,以達到給料的目的。
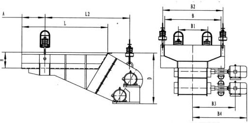
電機振動給料機外形尺寸

電機振動給料機技術參數
| 型號 | 槽體尺寸 寬×長×高(mm) | 給料能力t/h | 電機型號 | 功率(千瓦) | 振動頻率(Hz) | 振幅(雙)(mm) | 重量 (公斤) | |
| α=0° | α=10° | |||||||
| BZG1015 | 1000×1500×200 | 200 | 450 | Y112M-6 | 2×1.5 | 16 | 12 | 998 |
| BZG1020 | 1000×2000×200 | 200 | 450 | 2×2.2 | 1053 | |||
| BZG1216 | 1200×1600×280 | 200 | 600 | 1050 | ||||
| BZG1220 | 1200×2000×280 | 200 | 600 | 1123 | ||||
| BZG1525 | 1500×2500×330 | 500 | 1200 | Y132S-6 | 2×3 | 1850 | ||
| BZG1530 | 1500×3000×330 | 500 | 1200 | 1992 | ||||
| BZG1825 | 1800×2500×330 | 800 | 1500 | Y132M1-6 | 2×4 | 2180 | ||
| BZG1830 | 1800×3000×330 | 800 | 1500 | 2327 | ||||

| 型號 | A | H | L | D | B | B3 | B4 | B1 | L2 | B2 |
| BZG1015 | 400 | 288 | 1500 | 900 | 1000 | 649 | 949 | 600 | 1550 | 1200 |
| BZG1020 | 500 | 288 | 2000 | 900 | 1000 | 649 | 949 | 600 | 1950 | 1200 |
| BZG1216 | 400 | 288 | 1600 | 1000 | 1200 | 749 | 949 | 600 | 1650 | 1400 |
| BZG1220 | 500 | 288 | 2000 | 1000 | 1200 | 749 | 949 | 600 | 1950 | 1400 |
| BZG1525 | 800 | 330 | 2500 | 1170 | 1500 | 900 | 1146 | 907 | 2210 | 1735 |
| BZG1530 | 800 | 330 | 3000 | 1170 | 1500 | 900 | 1146 | 907 | 2710 | 1735 |
| BZG1825 | 800 | 330 | 2500 | 1170 | 1800 | 1079 | 1336 | 1207 | 2210 | 2035 |
| BZG1830 | 800 | 330 | 3000 | 1170 | 1800 | 1079 | 1336 | 1207 | 2710 | 2035 |
蘇公網安備 32062102000309號